香川県高松市の新築・分譲マンション
「ザ・サーパス高松錦町」のBタイプ
アクセスマップ
物件概要
ご契約者さま専用サイト
資料請求・来場予約
ホーム
コンセプト
ロケーション
デザイン
間取り
ギャラリー
ZEH-M Oriented
設備・仕様
サーパスの強み
構造
セキュリティー
耐災
サポート
品質・実績
ブランド
物件概要
資料請求・来場予約
サーパスマンション情報サイトトップへ
eさーぴすと会員登録
ご契約者さま専用サイト
ホーム
>
間取り
> Bタイプ
PLAN
基本プラン
メニュープラン
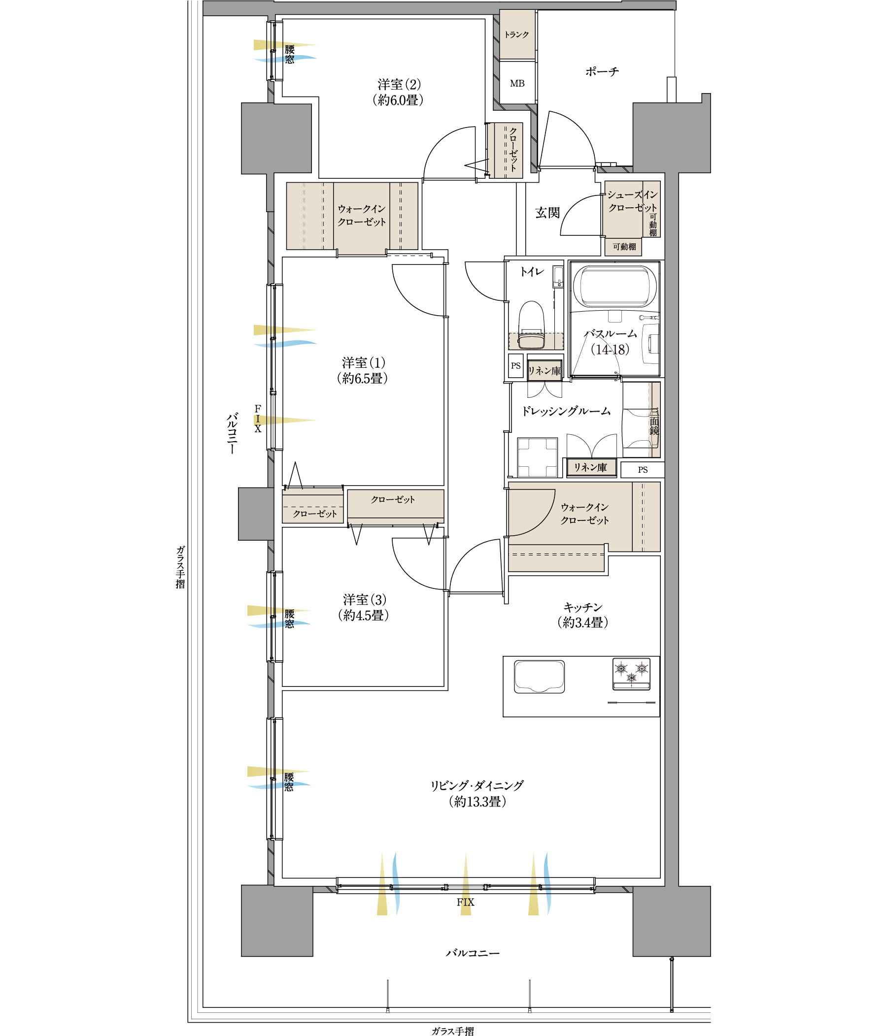
■ ⾓住⼾×L字型バルコニー
L字型に広がるバルコニーが採光と通⾵を⾼め、明るく爽やかな住空間を演出。
■ リビングと居室を完全分離
パブリック空間とプライベート空間をわけることで、来客時や家族間のプライバシーを守ります。
■ トランク付き玄関ポーチ
玄関に門柱を設置。共用廊下との境界をつくることで、玄関ポーチのプライバシー性を確保。
●掲載の間取り図面・設備仕様は開発段階のもので、設計・施工上の都合により変更する場合があります。
●方位記号は若干誤差があります。正確な方位については設計図書でご確認ください。
ホーム
コンセプト
ロケーション
デザイン
間取り
ギャラリー
ZEH-M Oriented
設備・仕様
サーパスの強み
ブランド
物件概要