群馬県前橋市の新築・分譲マンション「ザ・サーパス前橋駅前」のGタイプ[MENU]
アクセスマップ
物件概要
ご契約者さま専用サイト
資料請求・来場予約
ホーム
徒歩1分の価値
ポジション
ランドスケープ
ギャラリー
間取り
ZEH-M Oriented
設備仕様
サーパスの強み
構造
セキュリティー
耐災
サポート
品質・実績
ブランド
物件概要
資料請求・来場予約
サーパスマンション情報サイトトップへ
eさーぴすと会員登録
ご契約者さま専用サイト
ホーム
>
間取り
> Gタイプ[MENU]
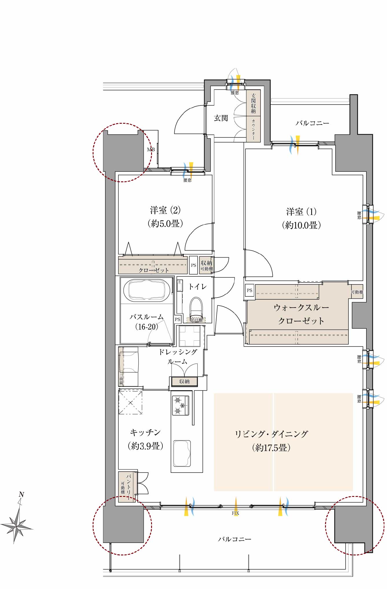
快適な家事動線と大型収納がある
ゆとりの2LDK角住戸プラン
◎ワイドな開口から光を取り込む横型LDKは、約21.4畳のゆとりある空間。
◎洋室(1)には2WAY動線の大容量ウォークスルークローゼットを設置。
◎ドレッシングルームとバルコニーにつながる機能的な家事動線を備えたキッチン。
◎広さと快適さを兼ね備えた、ゆとりのある1620ユニットバス。
● 掲載の間取り図面・設備仕様は開発段階のもので、設計・施工上の都合により変更する場合があります。
● 方位記号は若干誤差があります。正確な方位については設計図書でご確認ください。
ホーム
徒歩1分の価値
ポジション
ランドスケープ
ギャラリー
間取り
ZEH-M Oriented
設備仕様
サーパスの強み
ブランド
物件概要