群馬県前橋市の新築・分譲マンション「ザ・サーパス前橋駅前」のHタイプ
アクセスマップ
物件概要
資料請求
ホーム
徒歩1分の価値
ポジション
ランドスケープ
ギャラリー
間取り
ZEH-M Oriented
設備仕様
サーパスの強み
構造
セキュリティー
耐災
サポート
品質・実績
ブランド
物件概要
資料請求
サーパスマンション情報サイトトップへ
eさーぴすと会員登録
ホーム
>
間取り
> Hタイプ
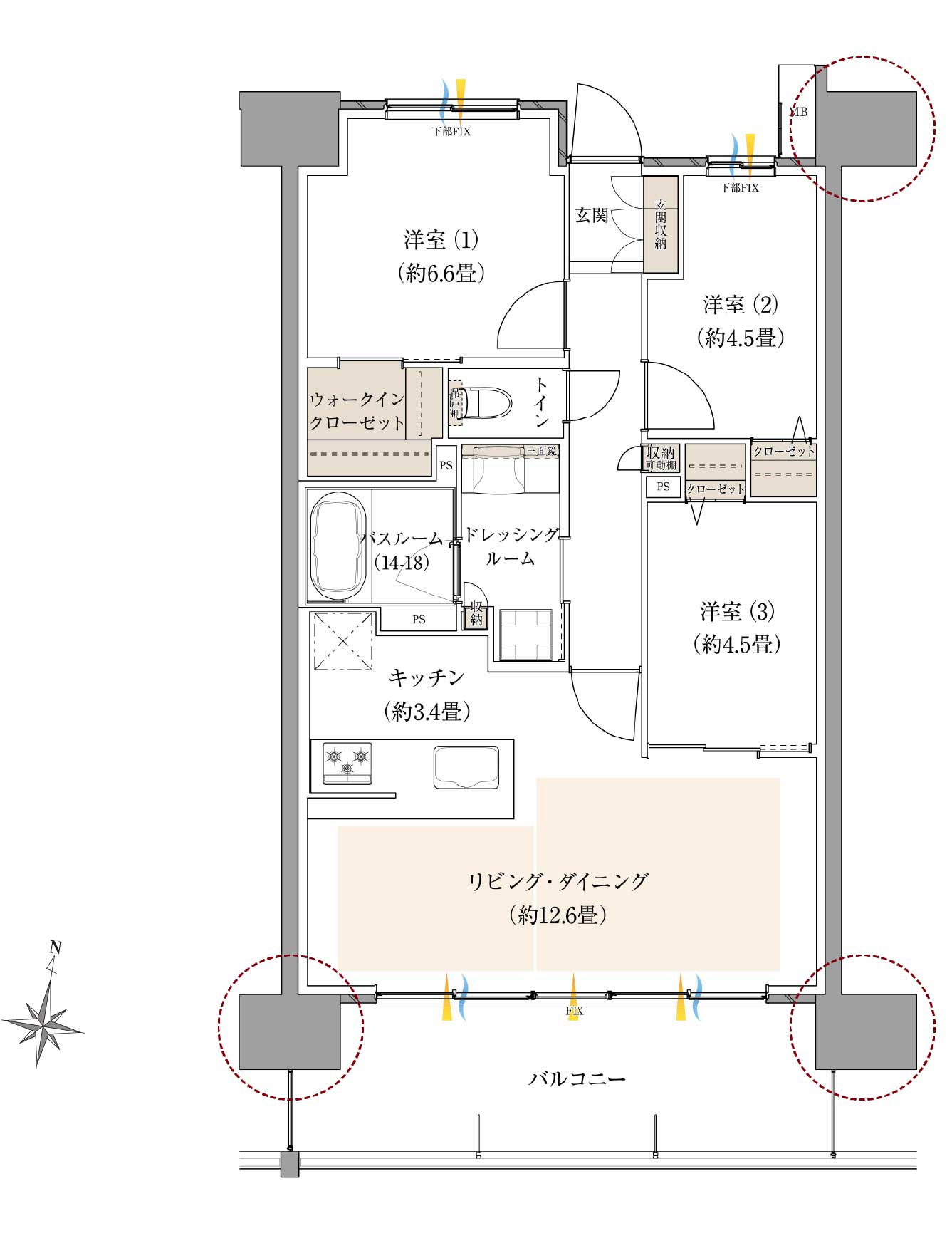
ワイドに広がる窓が開放感と
明るさを高めるプラン
◎リビング・ダイニングから広々とつながるバルコニー。
奥行きを約2.0m確保することで、さらに開放感がアップ。
◎リビング・ダイニングとつながる開放的なキッチンは、
家族の会話がはずむ対面カウンター式。
● 掲載の間取り図面・設備仕様は開発段階のもので、設計・施工上の都合により変更する場合があります。
● 方位記号は若干誤差があります。正確な方位については設計図書でご確認ください。
ホーム
徒歩1分の価値
ポジション
ランドスケープ
ギャラリー
間取り
ZEH-M Oriented
設備仕様
サーパスの強み
ブランド
物件概要