群馬県前橋市の新築・分譲マンション「ザ・サーパス前橋駅前」のEタイプ[MENU]
アクセスマップ
物件概要
ご契約者さま専用サイト
資料請求・来場予約
ホーム
徒歩1分の価値
ポジション
ランドスケープ
ギャラリー
間取り
ZEH-M Oriented
設備仕様
サーパスの強み
構造
セキュリティー
耐災
サポート
品質・実績
ブランド
物件概要
資料請求・来場予約
サーパスマンション情報サイトトップへ
eさーぴすと会員登録
ご契約者さま専用サイト
ホーム
>
間取り
> Eタイプ[MENU]
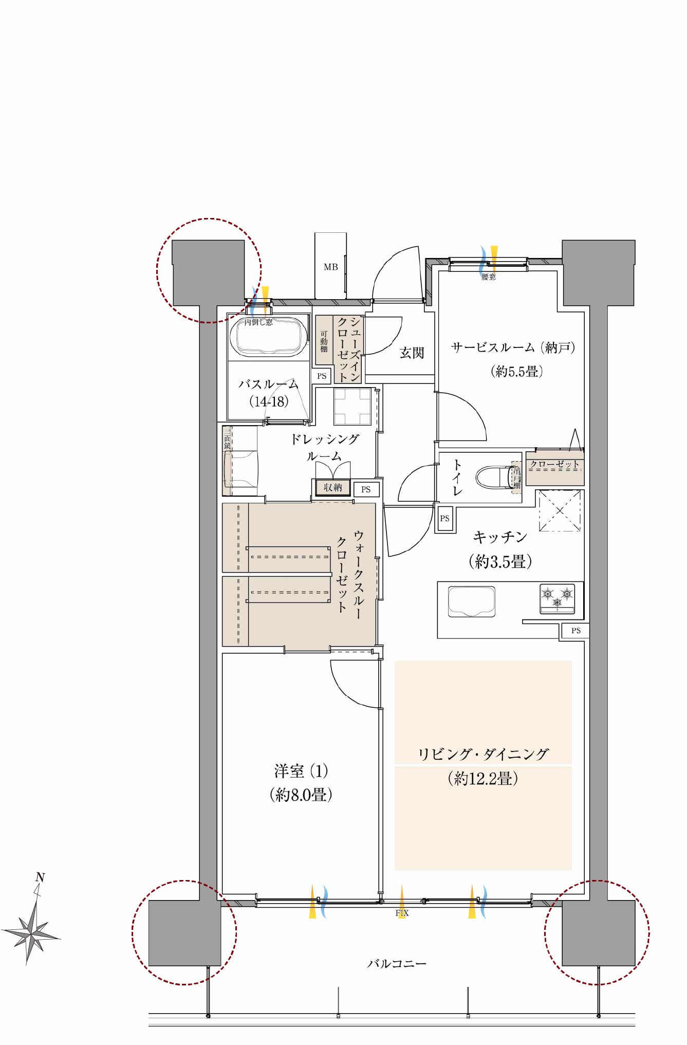
ゆとりの収納スペースを中心に、
それぞれの空間が機能的につながるプラン
◎マルチなバックヤードとして活躍する
3WAY動線のウォークスルークローゼット。
◎陽光あふれる南向きに配した洋室(1)。
● 掲載の間取り図面・設備仕様は開発段階のもので、設計・施工上の都合により変更する場合があります。
● 方位記号は若干誤差があります。正確な方位については設計図書でご確認ください。
ホーム
徒歩1分の価値
ポジション
ランドスケープ
ギャラリー
間取り
ZEH-M Oriented
設備仕様
サーパスの強み
ブランド
物件概要